Apple Valley Fire Station #2

In collaboration with Apple Valley Fire Station #2, my project partner and I redesigned an existing fire station in Apple Valley, Minnesota. The project’s goal was to output a complete set of construction documents of our new concept of the fire station that comply was the Apple Valley zoning ordinance and building codes.

Client Criteria

 

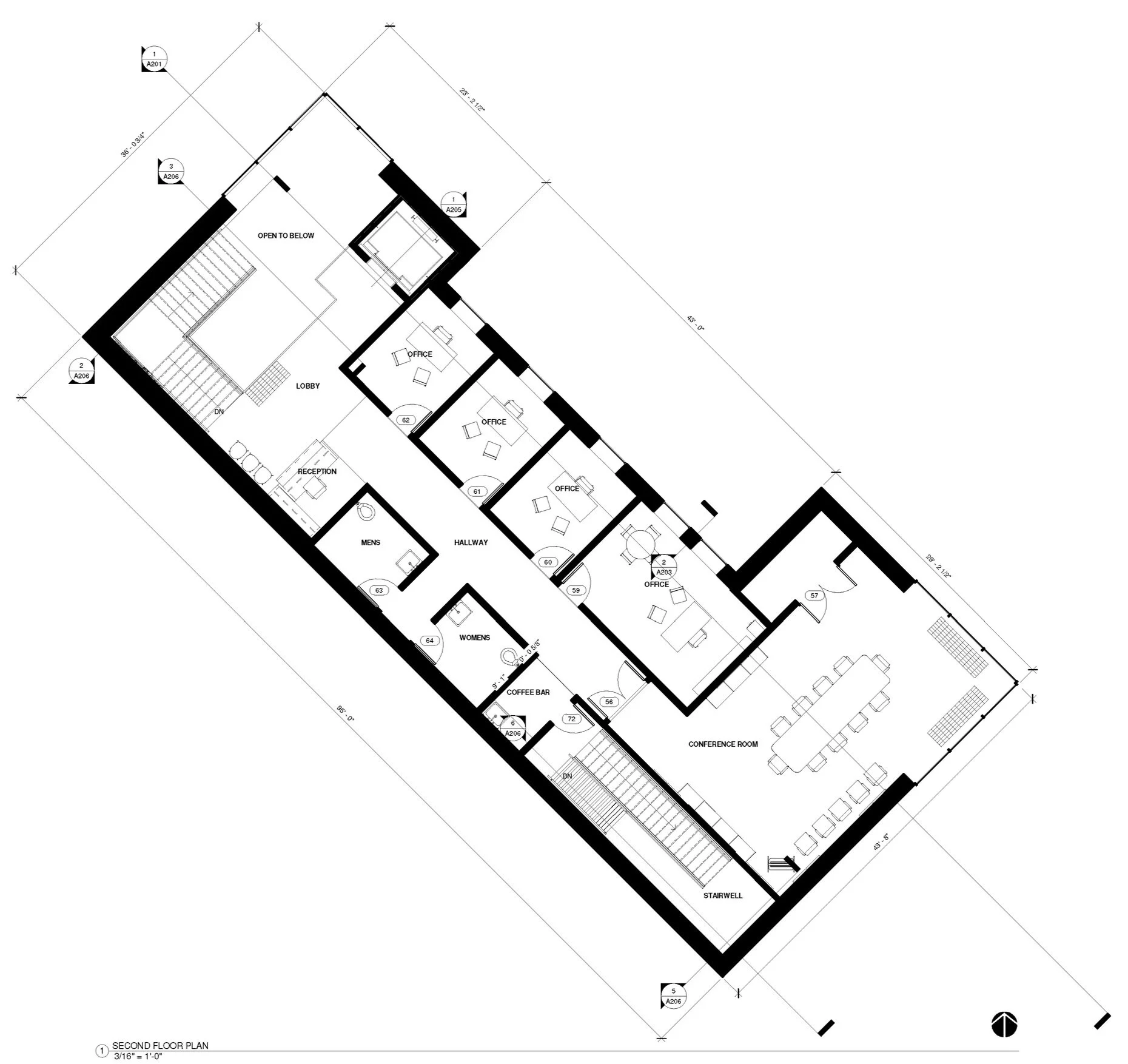
For this project, the client asked us to prioritize accessibility — both for the staff and for potential community visitors. To support this, we chose to highlight and further define the entrance to the fire station and create additional parking spaces out front. In addition, we were tasked with reconfiguring the administration offices, training rooms, and conference rooms to ease transitions throughout the day. The staff also required a larger kitchen and break room. Lastly, we redesigned the bathrooms to include showers for the staff, and proposed radiant floor heating throughout.

These changes allowed more natural light to enter the fire station, while also making it more accessible for tours.

13995 Galaxie Ave, Apple Valley, MN 55124

 
 

Detailed Project Specs

Zoning and Building Requirements

Project: Apple Valley Fire Station #2
Code Uses: 2015 IBC
Occupancy Type: B, A3, & S2 Fire Station
Construction Type: II-B
Basic Allowable Area: A3 - 9,500 Square Feet
Sprinkler Area Increase: 2
Allowable Stories: 3
Total Allowable Area Per Story: A3 - 19,000 Square Feet
Number of Stories: 2
Total Allowable Area Per Building: A3 - 38,000 Square Feet Area
Proposed First Floor: B, A3, S2 - 11,195 Square Feet Area
Proposed Second Floor: B, A3, S2 - 3,431 Square Feet
Area Separation: None
Allowable Stories & Height: Stories 3 - Height(FT) 40 Per Zoning
Proposed Stories & Height: Stories 2 - Height(FT) 32
Number Of Exits: First Floor 7 - Second Floor 2
Proposed Parking Spaces: 40 Spaces - 2 Handicap

 

Building and Parking Set Backs

Along Principal or Minor Arterial Streets: 50 FT
Along Community Neighborhood Collector: 40 FT
Along Other Streets: 35 FT
Along Side Lot: 10 FT
Along Rear Lot Line: 20 FT
Abutting R or M Districts: 20 FT

Along Public Streets: 20 FT
Abutting R or M Districts: 20 FT
Side or Rear Lot Line: 5 FT

 
Previous
Previous

The Canyon House

Next
Next

Designing the Fourth Coast